|
|
|
| 不銹鋼法蘭球閥 |
| 產品型號:Q41F |
|
|
主要性能規范:
|
型號 |
公稱壓力 |
試驗壓力 |
工作溫度(℃) |
適用介質 |
|
強度(水)Mpa |
密封(水)空氣(Mpa) |
低壓密封(空氣)Mpa |
|
Q41F-16P(R) |
1.6 |
2.4 |
1.8 |
0.6 |
≤150 |
硝酸類 |
|
Q41F-25P(R) |
2.5 |
3.8 |
2.8 |
0.6 |
≤150 |
硝酸類 |
|
Q41F-40P(R) |
4.0 |
6.0 |
4.4 |
0.6 |
≤150 |
硝酸類 |
|
主要零件的材料說明:
|
零件名稱 |
材料 |
|
Q41F-16P-25P-40R |
Q41F-16R-25P-40R |
|
閥體 |
鉻鎳鈦鋼 |
鉻鎳鉬鈦鋼 |
|
球體 |
|
閥桿 |
|
密封圈 |
聚四乙烯 |
|
扳手 |
鑄鋼 |
|
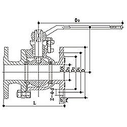
主要外形尺寸:
|
型號 |
公稱通徑 DN |
尺寸(mm) |
|
L |
D |
D1 |
D2 |
H |
b-f |
Z-Φd |
Do |
|
Q41F-16P(R) |
15 |
130 |
95 |
65 |
45 |
60 |
14-2 |
4-14 |
108 |
|
20 |
140 |
105 |
75 |
55 |
64 |
14-2 |
4-14 |
120 |
|
25 |
150 |
115 |
85 |
65 |
90 |
16-2 |
4-14 |
165 |
|
32 |
165 |
135 |
100 |
78 |
105 |
16-2 |
4-18 |
180 |
|
40 |
180 |
145 |
110 |
85 |
150 |
16-3 |
4-18 |
240 |
|
50 |
200 |
160 |
125 |
100 |
190 |
16-3 |
4-18 |
240 |
|
65 |
220 |
180 |
145 |
120 |
195 |
18-3 |
4-18 |
320 |
|
80 |
250 |
195 |
160 |
135 |
215 |
20-3 |
8-18 |
350 |
|
100 |
280 |
215 |
180 |
155 |
250 |
20-3 |
8-18 |
400 |
|
125 |
320 |
245 |
210 |
185 |
280 |
22-3 |
8-18 |
500 |
|
150 |
360 |
280 |
240 |
210 |
320 |
24-3 |
8-23 |
600 |
|
200 |
400 |
335 |
295 |
265 |
370 |
26-3 |
12-23 |
800 |
|
Q41F-25P(R) |
40 |
180 |
145 |
110 |
85 |
160 |
16-3 |
4-18 |
240 |
|
50 |
200 |
160 |
125 |
100 |
205 |
20-3 |
4-18 |
270 |
|
65 |
220 |
180 |
145 |
120 |
215 |
22-3 |
8-18 |
350 |
|
80 |
250 |
195 |
160 |
135 |
230 |
22-3 |
8-18 |
400 |
|
100 |
280 |
230 |
190 |
160 |
270 |
24-3 |
8-23 |
500 |
|
125 |
320 |
270 |
220 |
188 |
300 |
28-3 |
8-25 |
600 |
|
150 |
360 |
300 |
250 |
218 |
340 |
30-3 |
8-25 |
900 |
|
200 |
400 |
360 |
310 |
278 |
400 |
34-3 |
12-25 |
1100 |
|
Q41F-40P(R) |
15 |
130 |
95 |
65 |
45 |
60 |
16-2 |
4-14 |
40 |
|
20 |
140 |
105 |
75 |
55 |
65 |
16-2 |
4-14 |
51 |
|
25 |
150 |
115 |
85 |
65 |
90 |
18-2 |
4-14 |
58 |
|
32 |
180 |
135 |
100 |
78 |
105 |
18-3 |
4-18 |
66 |
|
40 |
200 |
145 |
110 |
85 |
170 |
18-3 |
4-18 |
76 |
|
50 |
220 |
160 |
125 |
100 |
230 |
20-3 |
4-18 |
88 |
|
65 |
250 |
180 |
145 |
120 |
250 |
22-3 |
8-18 |
110 |
|
80 |
280 |
195 |
160 |
135 |
250 |
22-3 |
8-18 |
121 |
|
100 |
320 |
230 |
190 |
160 |
295 |
24-3 |
8-23 |
150 |
|
125 |
400 |
270 |
220 |
188 |
330 |
28-3 |
8-25 |
176 |
|
150 |
400 |
300 |
250 |
218 |
375 |
30-3 |
8-25 |
204 |
|
200 |
550 |
375 |
320 |
282 |
440 |
38-3 |
12-30 |
260 |
|
產品簡介
產品特點:
1、的閥座:聚多年球閥制造經驗而設計的閥座,確保閥門密封,磨擦系數低,操作力矩小、多種閥座材料、適應范圍廣。
2、開關無誤的手柄:采用扁頭閥桿,與手柄的連接不會錯位,從而保證手柄指示的開關狀態與閥一致辭。
3、鎖緊裝置:為防止閥門開關誤操作,在閥門全開、全關位置有鎖定孔,確保閥門處于正確的位置。
4、閥桿防飛結構:閥桿為下裝式,防止受壓飛出,同時可在火災后,與閥體形成金屬接觸,確保閥桿密封。
適用介質:
水、氣、油品、天然氣和酸堿腐蝕性介質。
適用溫度:
-196~350℃
驅動方式:
手動、氣動、電動、液動等。
產品特征
產品型號 Q41F
產品規格 DN15-250 |
|
|
|